![]()
这是一套120平米的房子,整体以浅淡的灰白调空间基础,搭配上木质感与简约自然的家居质感,营造出一种现代舒适而又轻松的居家氛围,令人惬意舒适。
图·赏picture
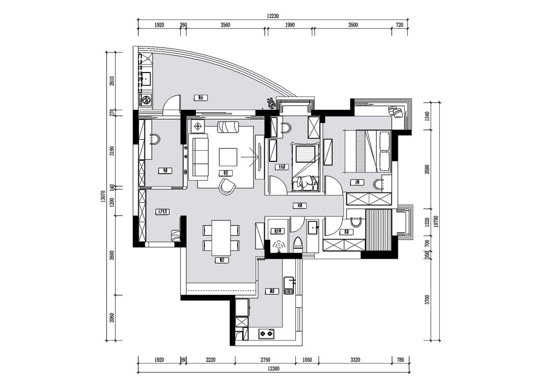
户型图+平面布置图

玄关

▲玄关进门后直对着小书房,左侧一排定制柜,柜底还留空一层作为拖鞋的存放位置,整体简洁的空间,也是明亮实用而自然。
客厅

▲简约灰色的电视墙,布置上木质的电视柜,左右侧还摆了一盆千年木与仙人掌,整体空间充满清新与简洁的大气感。

▲客厅沙发墙以木质+玻璃隔断的设计,后方就是一个小书房,整体采光打通的空间,显得更加时尚自然。搭配一张灰色的布艺沙发,一道木质装饰横穿整个沙发墙,让空间显得更加自然端庄。

▲这道横穿沙发墙的木方,上方摆着小摆件,增添了空间的精致感。

▲客厅餐厅是个大空间,整体视觉非常宽敞大方。
书房

▲简洁舒适的书房,连着旁边的阳台,结合沙发墙的玻璃墙,让在家办公显得格外的宽敞明亮。
餐厅

▲客厅与餐厅空间做成一体的格局,吊顶造型也是装成一个统一的大空间,采光通风条件都极佳。

▲胡桃木的餐桌椅,餐桌脚与餐椅的坐垫都是黑色的,搭配顶上两盏黑色灯罩的吊灯,背景墙挂一幅大面积黑白灰的野牛装饰画,让空间显得更加简约时尚。

▲侧边是一个深木色的成品餐边柜,里侧则是一个雅白的定制餐边柜,装成一个西餐操作台,整体优雅时尚的布置,让空间充满现代舒适的稳重气质。

▲操作台上方还有一层的格架层,这个放置小电器或展示品,提升空间的实用与情趣。
厨房

▲厨房灰木质感的地面墙面,搭配木质的定制橱柜,还有白色简洁的操作台、吊柜,L形的厨房让烹饪空间显得格外的实用端庄。
卧室

▲浅灰色的空间,布置上深木色的床铺与梳妆台,营造出一种安静舒适的睡眠空间。

▲床头梳妆台与桌椅,都是深木色的,梳妆台上放一个端庄的花瓶,插上干花呈现出禅意优雅的大气感。

▲床尾的梯子造型衣帽架,临时换下的衣物也可以方便地挂上去。
客房
客房以白色和原木色为基调,白色的干净大方和原木色的温润舒适都会让客人觉得备受关怀,为了节约空间,我们在靠窗的地方设置了榻榻米床,在满足收纳的同时也有效的利用空间。

▲客厅整体空间干净洁白的空间为主,靠窗布置的定制床,加入一个白色的大抽屉,还有格纹床单布置,显得轻松而惬意。

设计:熊志伟、陈琳@涵瑜设计 ,摄影:蓝灰点评:设计馆
欢迎设计师、业主、装修公司投稿
合作联系QQ:1660544525
![]()
相关案例1、130㎡简约日式,把木质感装上天花板,禅意舒适的空间
2、160㎡现代简约,简单舒适的家居,惬意优雅有气质!
3、120㎡现代北欧,简洁舒适的档次,温馨惬意又华丽
设计馆 微信号:shejiguan_cn10000套装修案例,深受欢迎的家居装修公众号!