
文章来源:搜建筑 微信号:sjz9999
北京市公布地方标准
《住宅设计规范》
(征求意见稿)
昨日,北京市规划和自然资源委员会发布《住宅设计规范(征求意见稿)》,这是北京首次公布地方版的《住宅设计规范》,搜建筑小编发现这次新出炉设计规范, 从解决居民实际问题的角度出发,在国家版《规范》基础上,根据当地实际情况,共编制了345个条款,其中200多个条款在国家标准《规范》基础上进行了调整和补充,从设计源头解决了多个“痛点”
当新规范实施后,将对后续的新项目产生多方面变化,所以各地产和设计院根据项目进展抓紧往前赶图吧,争取在新规范实施前,完成项目的审批工作。
影响较大的几个重点,搜建筑总结如下:
1、 全装修:住宅交房前,套内所有功能空间的固定面粉刷和管线全部铺装完成,厨房和卫生间的基本设施全部安装到位。2、明确层高:住宅层高不应低于2.80m。当住宅建筑标准层层高大于4.9m时,不论层内是否有隔层,建筑面积的计算值按该层水平投影面积的2倍计算;3、明确剪刀梯的连通方式;剪刀梯的两个楼梯应在走道或屋顶连通,也可在前室连通。4、电梯设置要求:四层及四层以上新建住宅或住户入口层楼面距室外设计地面的高度超过9m的新建住宅建筑,必须设置电梯,每个设置电梯的居住单元应至少设有1台可容纳担架的电梯。5、对担架电梯做出科学的规定:可容纳担架的电梯的额定载重量不应小于1000kg,轿厢深度不应小于1.60m,宽度不应小于1.50m(或计算出的面积与其相同的其他型号电梯),轿厢门洞净宽不应小于0.90m。
同时,该《规范》还本着提升居住安全、居住品质的原则,注重规范内容的精细化、可操作性,强化住宅无障碍与适老化设计,充分体现了“安全性、舒适性、前瞻性”的设计理念。
如有需要最新发布的标准,可以扫描文末的二维码进群索取

全文如下
北京市地方标准《住宅设计规范》
(征求意见稿)
本规范共分 12章,主要内容包括:
1.总则;2.术语;3.基本规定;
4.技术经济指标;5.套内空间;
6.公共空间;7.住宅设施;
8.室内环境;9.建筑结构;
10.建筑设备;11.建筑电气;12.管线综合设计。
1 总则
1.0.1 为适应北京市经济发展的需要,提高住宅设计水平,满足居民对居住品质、居住功能、居住环境和居住安全等多方面的要求,针对北京市的地
方特点,制定本规范。
1.0.2 本规范适用于北京市城镇新建、改建、扩建住宅的建筑设计。
1.0.3 住宅设计必须严格执行国家和北京市的有关方针、政策和法规,遵守安全卫生、环境保护和节约资源等有关规定,适当应用新能源,实现住宅
建设可持续发展。
1.0.4 住宅设计除应符合本规范外,尚应符合国家和北京市现行有关标准的规定。
2 术语
2.0.1 住宅
住宅是供家庭居住使用的成套设置居住功能和生活设施的建筑。
2.0.2 套型
由居住空间和厨房、卫生间、贮藏室、阳台等共同组成的基本住宅单元。
2.0.3 阳台
附设于建筑物外墙设有栏杆、栏板,可供人活动的空间。
2.0.4 凹口
为了房间的通风采光而在建筑平面上采用的凹形槽口。
2.0.5 贮藏室(间)
住宅套内用于贮藏并可以进入的空间。
2.0.6 室内净宽
墙(柱)与墙(柱)之间的水平距离。
2.0.7 全装修
住宅交房前,套内所有功能空间的固定面粉刷和管线全部铺装完成,厨房和卫生间的基本设施全部安装到位。
2.0.8 快件箱
又名智能快递柜、自提柜、智能邮箱等,设立在公共场合,可供投递和提取快件的自助服务设备。
2.0.9 智能家居系统
以住宅为平台,利用综合布线技术、网络通信技术、安全防范技术、自动控制技术、音视频技术将家居生活有关的设施集成,构建高效的住宅设施与家庭日程事务的管理系统,提升家居安全性、便利性、舒适性、艺术性,并实现环保节能的居住环境。包括家庭网络、家庭安防、家电智能控制、能源智能计量、节约低碳 、远程教育、远程医疗等。
2.0.10 智能电表
除具备传统电能表基本用电量的计量功能以外,还应具有用电信息存储、双向多种费率计量功能、用户端控制功能、多种数据传输模式的双向数据通信功能、防窃电功能等智能化的功能。
2.0.11 紧急呼叫装置
安装于家庭中的用于发生危险情况时对外发出求救及报警信号的电气装置。
2.0.12 电动汽车充电桩
为电动汽车充电的专用设施,能实现计时、计电度、计金额充电,充电桩可分为直流充电桩、交流充电桩和交直流一体充电桩。
2.0.13 信息管道
用于敷设通信及广播电视线缆的一种通道,由管道、人(手)孔和建筑物引入管等组成。
2.0.14 配线信息管道
主干信息管道人(手)孔至各建筑物接入管道之间敷设的信息管道。
2.0.15 楼道综合配线箱
建筑物内用于线缆分线的箱体,配线箱为线缆分线设备。
2.0.16 有线广播电视放大箱
用于安装信号放大器、分支器、分配器的箱体以下简称“放大箱”。
2.0.17 终端综合配线箱
用于安装各种配线模块、家庭交换机、计算机网络集线器或以太交换机及家庭智能化系统模块、有线广播电视用家庭网关等户内设备及设施的箱体。
2.0.18 出线盒
用户线缆的终接部位,出线盒可安装面板和信息模块。
2.0.19 有线广播电视终端盒
有线广播电视终端盒是指用户电器(如电视机、收音机等)与有线广播电视系统连接的设备盒。
2.0.20 安全等级
根据破坏后果的严重程度划分的结构或结构构件的等级。
2.0.21 耐久性
是材料抵抗自身和自然环境双重因素长期破坏作用的能力。
2.0.22 结构缝
根据结构设计需求而采取的分割混凝土结构间隔的总称。
3 基本规定
3.0.1 住宅设计应符合北京市城乡规划及居住区规划的要求,遵守法律、法规规章以及国家和本市的技术标准和设计规范。
3.0.2 住宅设计应与住区规划设计相协调,并应符合《北京市居住公共服务设施配置指标》的要求。
3.0.3 住宅设计应体现绿色、节能、生态、环保等理念,并应符合北京市发展绿色建筑的相关要求。
3.0.4 住宅设计应使建筑与周围环境相协调,并应合理营造便捷、健康、舒适的生活空间。
3.0.5 住宅设计应体现以人为本的思想,满足多样的居住需求,除考虑基本居住要求外,尚应考虑适老性和无障碍的特殊使用要求。
3.0.6 住宅设计应满足居住者所需的日照、采光、通风、隔声和空气质量等多方面的要求。
3.0.7 住宅设计应推行模数化、标准化、多样化,考虑在住宅中应用新技术、新材料、新产品,促进住宅产业现代化,提高住宅在全生命周期内的品
质。当住宅采用装配式建筑设计时,应满足国家和北京市的相关规范标准。
3.0.8 住宅的结构设计应满足安全、适用和耐久的要求。
3.0.9 住宅设计应符合国家工程建设消防技术标准,遵守《北京市消防条例》的规定,并应满足安全疏散的要求。
3.0.10 住宅设计应满足设备系统功能有效、运行安全、维修方便等基本要求,并应为相关设备预留合理的安装位置。
3.0.11 新建住宅应实施全装修,提高住宅产品的完成度。建筑设计与装修设计应同步进行并一体化实施。全装修设计应执行相应的规范标准。
4 技术经济指标
4.0.1 住宅设计应计算下列技术经济指标:
——各功能空间使用面积(m?);
——套内使用面积(m?/套);
——套型阳台面积(m?/套);
——套型总建筑面积(m?/套);
——住宅楼总建筑面积(m?)。
4.0.2 计算住宅的技术经济指标,应符合下列规定:
1 各功能空间使用面积应等于各功能空间墙体内表面所围合的水平投影面积;
2 套内使用面积应等于套内各功能空间使用面积之和;
3 套型阳台面积应按照其维护结构外围水平投影计算建筑面积
4 套型总建筑面积应等于套内使用面积、相应的建筑面积和套型阳台面积之和;
5 住宅楼总建筑面积应等于全楼各套型总建筑面积之和。
4.0.3 套内使用面积计算,应符合下列规定:
1 套内使用面积应包括卧室、起居室(厅)、餐厅、厨房、卫生间、过厅、走道、贮藏室等使用面积的总和;
2 跃层住宅中的套内楼梯应按自然层数的使用面积总和计入套内使用面积;
3 烟囱、通风道、管井等均不应计入套内使用面积;
4 套内使用面积应按结构墙体表面尺寸计算;有复合保温层时,应按复合保温层表面尺寸计算;
5 利用坡屋顶内的空间时,屋面板下表面与楼板地面的净高低于1.20m的空间不应计算使用面积,净高在1.20m~2.10m的空间应按1/2计算使用面积,净高超过2.10m的空间应全部计入套内使用面积;坡屋顶无结构顶层楼板,不能利用坡屋顶空间时不应计算其使用面积;
6 坡屋顶内的使用面积应列入套内使用面积中。
4.0.4 套型总建筑面积计算,应符合下列规定:
1 应按全楼各层外墙结构外表面及柱外沿所围合的水平投影面积之和求出住宅楼建筑面积,当外墙设外保温层时,应按保温层外表面计算;
2 应以全楼总套内使用面积除以住宅楼建筑面积得出计算比值;
3 套型总建筑面积应等于套内使用面积除以计算比值所得面积,加上套型阳台面积。
4 当住宅建筑标准层层高大于4.9m时,不论层内是否有隔层,建筑面积的计算值按该层水平投影面积的2倍计算;当住宅建筑层高大于7.60m时,不论层内是否有隔层,建筑面积的计算值按该层水平投影面积的3倍计算。
4.0.5 住宅楼的层数计算应符合下列规定:
1 当住宅楼所有楼层的层高不大于3.00m时,层数应按自然层数计;
2 当住宅和其他功能空间处于同一建筑物内时,应将住宅部分的层数与其他功能空间的层数叠加计算建筑层数。当建筑中有一层或若干层的层高大于3.00m时,应对大于3.00m的所有楼层按其高度总和除以3.00m进行层数折算,余数小于1.50m时,多出部分不应计入建筑层数,余数大于或等于1.50m时,多出部分应按1层计算;
3 层高小于2.20m的架空层和设备层不应计入自然层数;
4 高出室外设计地面小于 1.50m 的半地下室不应计入地上自然层数。
5 套内空间
5.1 套型
5.1.1 住宅应按套型设计,每套住宅应设卧室、起居室(厅)、厨房和卫生间等基本功能空间。
5.1.2 套型的使用面积应符合下列规定:
1 由卧室、起居室(厅)、厨房和卫生间组成的套型,其使用面积不应小于32m?;
2 由兼起居的卧室、厨房和卫生间等组成的最小套型,其使用面积不应小于 24m?。
5.1.3 套型出入口宜设过渡空间。
5.1.4 5.1.4 套型设计宜设置晾晒空间
5.1.5 套型设计宜进行模数协调设计。功能分区应明确合理,做到洁污分离、动静分离。合理安排各空间的序列,减少交通面积,组织好公共空间和私密空间的关系,避免相邻住户的视线干扰。
5.2 卧室
5.2.1 卧室的使用面积应符合下列规定:
1 双人卧室不应小于10m?;
2 单人卧室不应小于6m?;
3 兼起居的卧室不应小于13m?。
5.2.2 双人卧室的短边净宽不宜小于2.80m;单人卧室的短边宽不宜小于2.20m。
5.3 起居室(厅)、餐厅
5.3.1 起居室(厅)的使用面积不应小于11m?。
5.3.2 起居室(厅)的短边净宽不宜小于3.00m。
5.3.3 起居室(厅)内门洞设置应考虑使用功能的要求,减少直接开向起居室(厅)的门洞的数量,且布置家具的墙面直线长度宜大于3.00m。
5.3.4 套型内无独立的餐厅时,起居室应兼有用餐的空间。
5.3.5 无直接采光的餐厅、过厅等,其使用面积不宜大于 10m?。
5.4 厨房
5.4.1 由兼起居的卧室、厨房和卫生间等组成的最小套型,其厨房使用面积不应小于4m?,由卧室、起居室(厅)、厨房和卫生间组成的套型,其厨房使用面积不应小于5m?。
5.4.2 厨房应直接采光、自然通风。
5.4.3 厨房应按炊事操作流程整体布置洗涤池、操作台、灶台及排油烟机、热水器、吊柜等设施或为其预留安装位置。
5.4.4 厨房不宜设置地漏。
5.4.5 厨房的地面应采用防滑的装饰材料。
5.4.6 厨房在有效解决油烟和燃气安全的条件下可设置为开敞空间,否则应独立具有可封闭性。
5.4.7 单排布置设备的厨房净宽不应小于1.50m;双排布置设备的厨房其两排设备之间的净距不应小于0.90m。
5.5 卫生间
5.5.1 每套住宅应设卫生间,应至少配置座便器、洗浴器、洗面器三件卫生设备或为其预留设置位置及条件。三件卫生设备集中配置的卫生间的使用面积不应小于3.00m?。
5.5.2 卫生间可根据使用功能要求组合不同的设备。不同组合的空间使用面积应符合下列规定:
1 设便器、洗面器时不应小于2.10m?;
2 设便器、洗浴器时不应小于2.30m?;
3 设洗面器、洗浴器时不应小于2.50m?;
4 设洗面器、洗衣机时不应小于2.10m?;
5 单设便器时不应小于1.10m?。
5.5.3 套型内设有两个及以上卧室且仅设置一个卫生间时,洗面器与便器宜分别布置在不同空间。
5.5.4 无前室的卫生间的门不应直接开向起居室(厅)或厨房,且不宜直接开向餐厅。
5.5.5 卫生间不应直接布置在下层住户的卧室、起居室(厅)、厨房和餐 厅的上层。当卫生间布置在本套内的卧室、起居室(厅)、餐厅和厨房的上
层时,均应有防水、隔声和便于检修的措施。
5.5.6 每套住宅应设置洗衣机的位置及条件。
5.5.7 新建住宅应在卫生间厕位和淋浴位置的墙内或地面预埋安装扶手的条件,并适当增大厕位和淋浴空间。
5.5.8 卫生间的地面应采用防滑的装修材料。
5.5.9 住宅户内宜设置一个卫生间与卧室相邻,且两房间之间的分隔墙宜为轻质墙,便于适老改造。
5.6 贮藏、走道及套内楼梯
5.6.1 住宅宜设置贮藏空间。
5.6.2 套内入口过道净宽不宜小于1.20m;通往卧室、起居室的过道净宽不应小于1.00m;通往厨房、卫生间、贮藏室的过道净宽不应小于0.90m。
5.6.3 套内设于底层或靠外墙、靠卫生间的壁柜内部应采取防潮措施。
5.6.4 套内楼梯当一边临空时,梯段净宽不应小于0.75m;当两侧有墙时,墙面之间净宽不应小于0.90m,并应在其中一侧墙面设置扶手。
5.6.5 套内楼梯的踏步宽度不应小于0.22m;高度不应大于0.20m,扇形踏步转角距扶手中心0.25m处,宽度不应小于0.22m。
5.6.6 住宅户内的过道宜为无障碍通道;户内承重墙上设置的门应满足通行净宽度不小于800mm的要求或预留改造的条件。
5.7 阳台、凹口
5.7.1 每套住宅宜设阳台或平台。
5.7.2 阳台栏杆设计必须采用防止儿童攀登的构造,栏杆的垂直杆件间净距不应大于0.11m,放置花盆处必须采取防坠落措施。
5.7.3 住宅的阳台栏杆净高不应低于1.10m。
5.7.4 顶层阳台应设置雨罩,各套住宅之间毗连的阳台应设分户隔板。隔板的设置应考虑安全的要求。
5.7.5 阳台、雨罩均应采取有组织排水措施,开敞阳台及雨罩应采取防水措施。
5.7.6 当阳台设有洗衣设备时应符合下列规定:
1 应设置专用给、排水管线及专用地漏,阳台楼、地面均应做防水;
2 阳台应采用封闭阳台,并应采取保温措施。
5.7.7 凹口内不宜设置卧室、起居室(厅)等房间;
如果在凹口内设置了以上房间,则应当满足以下条件:
1 凹口的净宽应不小于1.50m;
2 凹口的净宽与净深之比应不小于1:2。
3 当凹口净宽小于1.80m时,应设置防盗窗或采取相应的防攀爬措施。
5.8 层高、室内净高
5.8.1 住宅层高不应低于2.80m。
5.8.2 卧室、起居室的室内净高不应低于2.50m。局部净高不应低于2.20m,且其面积不应大于室内使用面积的1/3。
5.8.3 利用坡屋顶内空间作卧室、起居室(厅)时,至少有1/2的使用面积的室内净高不应低于2.20m。
5.8.4 厨房、卫生间的室内净高不应低于2.20m。贮藏室的室内净高不宜低于2.00m。
5.8.5 厨房、卫生间内排水横管下表面与楼面、地面净距不得低于2m,且不得影响门、窗开启。
6 公共空间
6.1 出入口、走廊及联系廊
6.1.1 公共出入口处应有标识,建筑高度大于27m的住宅公共出入口应设门厅。
6.1.2 公共出入口台阶高度超过0.70m并侧面临空时,应设置防护设施,防护设施净高不应低于1.05m。
6.1.3 公共出入口台阶踏步高度不宜大于0.15m,并不应小于0.10m,宽度不应小于0.30m,踏步高度应均匀一致,并应采取防滑措施。台阶踏步数不
应少于 2 级,当高差不足 2 级时,应按坡道设置,并应符合无障碍的坡度要求。台阶宽度大于1.80m时,两侧宜设置无障碍栏杆双层扶手。
6.1.4 主要出入口与室外地面有高差时,应设置无障碍出入口。
6.1.5 住宅的无障碍出入口应与室外道路、居住绿地及配套公共设施的出入口进行无障碍衔接。
6.1.6 主要出入口的门厅宜设置轮椅停留的空间。
6.1.7 公共出入口应设平台,建筑高度18m及18m以下的住宅平台深度不应小于1.50m, 建筑高度18m以上的住宅平台深度不应小于2.00m,并应采取防滑措施。
6.1.8 位于阳台、外廊及开敞楼梯平台下部的公共出入口,应采取防止物体坠落伤人的安全措施。建筑高度大于27m的住宅,其直通室外的安全出入口上方安全措施的挑出宽度不应小于 1m。
6.1.9 住宅中作为主要通道的外廊宜为封闭外廊,并应设置可开启的窗扇。走廊通道的净宽不应小于 1.20m,局部净高不应低于 2.00m。疏散走道和首层主要疏散外门的净宽不应小于1.20m。
6.1.10 住宅建筑不宜以联系廊的形式借用疏散楼梯和电梯。确有困难时,联系廊的净宽不应小于1.10m,局部净高不应低于 2.00m。
6.1.11 外廊、内天井及上人屋面等临空处的栏杆净高, 建筑高度为18m及18m 以下不应低于1.05m,建筑高度18m 以上不应低于1.10m。防护栏杆必须采用防止儿童攀登的构造,栏杆的垂直杆件间净距不应大于 0.11m。放置花盆处必须采取防坠落措施。
6.1.12 住宅的公共出入口与附建公共用房及其他非住宅部分的出入口、安全出口和疏散楼梯应分开布置。
6.2 安全疏散
6.2.1 建筑高度不大于27m的住宅建筑,当每个单元任一层的建筑面积大于650m
2,或任一户门至最近安全出口的距离大于 15m 时,每个单元每层的安全出口不应少于2个。
6.2.2 建筑高度大于27m,但不大于54m的住宅建筑,当每个单元任一层的建筑面积大于650m?,或任一户门至最近安全出口的距离大于10m时,每个单元每层的安全出口不应少于2个。
6.2.3 建筑高度大于54m的住宅建筑,每个单元任一层的安全出口设置不应少于2个。
6.2.4 建筑高度大于27m,但不大于54m 的住宅建筑,每个单元设置一座疏散楼梯时,疏散楼梯应通至屋面,且单元之间的疏散楼梯应能通过屋面连通,
户门应采用乙级防火门。当不能通至屋面或不能通过屋面连通时,应设置2个安全出口。
6.2.5 住宅建筑的安全出口净宽度应经计算确定,且不应小于0.90m。当设有2个安全出口时,应分散布置且2个安全出口之间的距离不应小于5m。
6.2.6 楼梯间及前室的门应向疏散方向开启。
6.3 楼梯间
6.3.1 住宅建筑的楼梯间形式应根据建筑形式、建筑高度、建筑面积以及户门的耐火等级等因素确定。楼梯间不宜设置在建筑的尽端和转角处。
6.3.2 符合下列条件时,可设置敞开楼梯间:
1 建筑高度不大于21m的住宅建筑,疏散楼梯不与电梯井相邻布置;
2 建筑高度不大于21m的住宅建筑,疏散楼梯与电梯井相邻布置,但户门采用乙级防火门;
3 建筑高度大于21m、不大于33m的住宅建筑,户门采用乙级防火门。
6.3.3 符合下列条件时,应设置封闭楼梯间:
1 建筑高度不大于21m 的住宅建筑,与电梯井相邻布置的疏散楼梯;
2 建筑高度大于21m、不大于33m的住宅建筑,且户门未采用乙级防火门。
6.3.4 建筑高度大于33m的住宅建筑应设置防烟楼梯间
6.3.5 当设置防烟楼梯间时,户门不宜直接开向前室,确有困难时,每层开向同一前室的户门不应大于3樘且应采用乙级防火门。
6.3.6 住宅单元疏散楼梯,当分散设置确有困难且任一户门至最近疏散楼梯间入口的距离不大于10m 时,可采用剪刀楼梯间,但应符合下列规定:
1应釆用防烟楼梯间;
2 梯段之间应设置耐火极限不低于1.00h 的防火隔墙;
3 楼梯间的前室不宜共用;共用时,前室的使用面积不应小于6.0m?;
4 楼梯间的前室或共用前室不宜与消防电梯的前室合用,合用时,合用前室的使用面积不应小于12.0m?,且短边不应小于2.4m。
6.3.7 剪刀梯的两个楼梯应在走道或屋顶连通,也可在前室连通。
6.3.8 楼梯疏散宽度:
住宅建筑的疏散楼梯总净宽度应经计算确定。18m 以上的住宅建筑疏散楼梯,其净宽度不应小于1.10m。18m及18m以下的住宅中一边设置栏杆的疏散楼梯,其净宽度不应小于1.0m。100m以上的高层住宅疏散楼梯净宽度不应小于1.2m。
6.3.9 住宅的公共楼梯,同一楼梯梯段的踏步宽度、高度应均匀一致,楼梯踏步宽度不应小于0.26m,踏步高度不应大于0.175m。不设置电梯的住宅,楼梯踏步的宽度宜大于0.28m,踏步高度宜小于等于0.16m,且宜设置双侧扶手。扶手高度不应小于0.90m。楼梯水平段栏杆长度大于0.50m 时,其扶手高度不应小于1.05m。楼梯栏杆垂直杆件间净空不应大于0.11m。
6.3.10 楼梯平台净宽不应小于楼梯梯段净宽,且不得小于1.20m。楼梯平台的结构下缘至人行通道的垂直高度不应低于2.00m。入口处地坪与室外地面应有高差,并不应小于0.10m。
6.3.11 楼梯为剪刀梯时,楼梯平台的净宽不得小于1.30m。
6.3.12 楼梯井净宽大于0.11m时,必须采取防止儿童攀滑的措施。
6.3.13 100m及以上的高层住宅的楼梯,其设置数量及梯段宽度应经过计算确定,且不宜设置剪刀梯。
6.4 电梯及电梯间
6.4.1 四层及四层以上新建住宅建筑或住户入口层楼面距室外设计地面的高度超过9m的新建住宅建筑,必须设置电梯,每个设置电梯的居住单元应至少设有1台可容纳担架的电梯。
6.4.2 十二层及十二层以上或住户入口层楼面距室外设计地面的高度超过33m时,每个居住单元设置电梯不应少于两台。二十五层及二十五层以上或住户入口层楼面距室外设计地面的高度超过72m,同时单台电梯服务户数大于90户时,每栋楼设置电梯不宜少于三台。
6.4.3 可容纳担架的电梯的额定载重量不应小于1000kg,轿厢深度不应小于1.60m,宽度不应小于1.50m(或计算出的面积与其相同的其他型号电梯),轿厢门洞净宽不应小于0.90m。可容纳担架的电梯应设置运行状态显示和安全启停控制系统,在紧急需求状态下能够快速到达相应楼层。
6.4.4 设置电梯的住宅,每居住单元至少应设置 1 部能直达户门层的无障碍电梯。
6.4.5 100m以上高层住宅的电梯,其设置数量应经过计算确定,且不应少于3台,其中至少一台电梯轿厢的尺寸应符合本规范第6.4.3条的规定。
6.4.6 四层及四层以上住宅电梯应在设有户门和公共走廊的每层设站。住宅电梯应采用节能型电梯,且宜成组集中布置,并采用群控联动的节能控制措施。
6.4.7 候梯厅深度不应小于多台电梯中最大轿厢的深度,且不应小于1.50m。候梯厅应采取防滑措施。
6.4.8 电梯不应紧邻卧室布置。当受条件限制,电梯不得不紧邻兼起居的卧室布置时,应采取隔声、减振的构造措施。
6.4.9 建筑高度大于33m的住宅建筑应设置消防电梯。消防电梯前室的使用面积不应小于6.0m?,前室的短边不应小于2.4m。
6.5 附建公共用房
6.5.1 住宅建筑内严禁布置存放和使用甲、乙类火灾危险性物品的商店、车间和仓库,以及产生噪声、振动和污染环境卫生的商店、车间和娱乐设施。
6.5.2 住宅建筑内不应布置易产生油烟的餐饮店及变配电机房,当住宅底层商业网点布置有刺激性气味或噪声的配套用房,应采取排气、消声处理。
6.5.3 水泵房、冷热源机房等公共机电用房不宜设置在住宅主体建筑内,不宜设置在与住户相邻的楼层内,在无法满足上述要求贴临设置时,应增加隔声减振处理。
6.5.4 设置商业服务网点的住宅建筑,其居住部分与商业服务网点之间应采用耐火极限不低于2.00h 且无门、窗、洞口的防火隔墙和1.50h 的不燃性楼板完全分隔,住宅部分和商业服务网点部分的安全出口和疏散楼梯应分别独立设置。
6.6 地下室、半地下室
6.6.1 卧室、起居室(厅)、厨房不应布置在地下室;当布置在半地下室时,必须对采光、通风、日照、防潮、排水及安全防护采取措施,并不得降低各项指标要求。
6.6.2 住宅的地下室、半地下室做自行车库和设备用房时,其净高不应低于2.00m;当住宅的地上架空层及半地下室做机动车停车位时,其净高不应低于2.20m。
6.6.3 地上住宅楼、电梯间宜与地下车库连通,并宜采取安全防盗措施。
6.6.4 直通住宅单元的地下楼、电梯间入口处应设置乙级防火门,严禁利用楼、电梯间为地下车库进行自然通风。
6.6.5 地下室、半地下室应采取有效的防水、防潮及通风措施,采光井应采取排水措施和防护措施。
7 住宅设施
7.1 门窗
7.1.1 临空的外窗,窗台距楼面、地面的净高低于0.90m时,应设置防护设施。
7.1.2 住宅北向不应设置凸窗。
7.1.3 东、西、南向不宜设置凸窗,当设置凸窗,且窗台距楼面净高低于0.90m时,应设置防护设施,防护高度从窗台面起算不应低于0.90m,并应贴窗设置。
7.1.4 面临走廊、共用上人屋面或凹口的窗,应避免视线干扰。向走廊开启的窗扇不应妨碍交通。
7.1.5 住宅建筑应在首层出入口(单元门)安装电控防盗门;住宅底层车库内通往各单元入口处也应安装电控防盗门。当发生火警时,疏散通道上和出入口处的门禁应能集中解锁或能从内部手动解锁。
7.1.6 住宅的外窗遇下列情况时应设置入侵防范措施:
1 首层各外窗,包括封闭阳台的窗和不封闭阳台从室外通向阳台的门窗。
2 其它层的外窗窗台距下部屋顶平台、大挑檐、公共走廊的地面等不足2m的门窗。
3 其它有入侵可能的外窗。
7.1.7 户门应采用具备防盗、保温、隔声功能的防护门。向外开启的时候不应妨碍公共交通及相邻户门开启。
7.1.8 外窗安全防护措施宜与窗体一体化设计制作。
7.1.9 厨房、卫生间及储藏室的门应在下部设置有效截面积不小于0.02m?的固定百叶,也可距地面留出不小于30mm的缝隙。
7.1.10 各部位门扇最小净尺寸应符合表7.1.10的规定。

7.2 信报箱与智能快件箱
7.2.1 新建住宅应每套配套设置信报箱。
7.2.2 住宅设计应在方案设计阶段布置信报箱和智能快件箱的位置。信报箱宜设置在住宅单元主要入口处。
7.2.3 设有单元安全防护门的住宅,信报箱和智能快件箱的投递口应设置在门禁以外。当通往投递口的专用通道设置在室内时,通道净宽应不小于0.6m。
7.2.4 信报箱和智能快件箱的投取信件、快件口设置在公共通道位置时,通道的净宽应从信报箱和智能快件箱的最外缘起算。
7.2.5 信报箱和智能快件箱的设置不得降低住宅基本空间的天然采光和自然通风标准。
7.2.6 信报箱和智能快件箱设计应选用定型产品,产品应符合国家有关标准。选用嵌墙式信报箱时应设计洞口尺寸和安装、拆卸预埋件位置。
7.2.7 信报箱的设置宜利用共用部位的照明,但不得降低住宅公共照明标准。
7.2.8 选用智能信报箱、智能快件箱时,应预留必要的安装条件。
7.3 空调室外搁板
7.3.1 当阳台或建筑外墙设置空调室外机时,其安装位置应符合下列规定:
1 应能通畅地向室外排放空气和自室外吸入空气;
2 在排出空气一侧不应有遮挡物,应满足室外机散热需求;
3 应为室外机安装和维护提供方便操作的条件;
4 安装位置不应对室外人员形成热污染;
7.3.2 空调室外机的冷凝水不得接入屋面雨水管及阳台排水管。
7.3.3 住宅的空调室外机应在建筑设计中一体化考虑,搁板设计应有序、隐蔽、美观。
7.3.4 当相邻套住宅的空调室外搁板共用或相邻设置时,应采取安全隔离措施防止相邻住户间互相影响。
7.3.5 建筑高度100m及100m以上的高层住宅不应设置空调室外搁板,宜在阳台内或套内其他位置设置集中空调机设备。
7.4 共用排气道与管道井
7.4.1 建议厨房排油烟宜采用水平直排方式,且油烟机直排口的设置应与建筑外立面相协调。水平直排口的设置不应影响相邻住户。
7.4.2 无外窗的卫生间应设共用排气道,且卫生间的共用排气道与厨房的共用排气道应分别设置。
7.4.3 共用排气道应采用能够防止各层回流的定型产品,并应符合国家有关标准。排气道断面尺寸应根据层数确定,排气道接口部位应安装支管接口配件,厨房排气道接口直径应大于150mm,卫生间排气道接口直径应大于80mm。
7.4.4 共用排气道、管道井应与厨房、卫生间的设施紧密结合布置,在满足功能使用的条件下应设置紧凑合理,美观实用。
7.4.5 竖向排气道屋顶风帽的安装高度不应低于相邻建筑砌筑体。排气道的出口设置在上人屋面、住户平台上时,应高出屋面或平台地面2m;当周围4m之内有门窗时,应高出门窗上皮0.60m。
7.4.6 管道井、建筑内的电梯井等竖井应符合下列规定:
1 电缆井、管道井、排烟道、排气道等竖向井道,应分别独立设置。井壁的耐火极限不低于1.00h, 井壁上的检査门应采用丙级防火门;、
2 住宅内的电缆井、管道井应在每层楼板处采用不低于楼板耐火极限的不燃材料或防火封堵材料封堵;
3 住宅内不应设置垃圾管井;
4 电梯门的耐火极限不应低于1.00h。
7.5 防火构造
7.5.1 住宅建筑外墙上、下层开口之间应设置高度不小于1.2m的实体墙或挑出宽度不小于1.0m、长度不小于开口宽度的防火挑檐;当室内设置自动喷水灭火系统时,上、下层开口之同的实体墙高度不应小于0.8m。当上、下层开口之间设置实体墙确有困难时,可设置防火玻璃墙,但高层建筑的防火玻璃墙的耐火完整性不应低于1.00h,建筑高度不大于27m 的建筑的防火玻璃墙的耐火完整性不应低于0.50h。外窗的耐火完整性不应低于防火玻璃墙的耐火完整性要求。
7.5.2 住宅建筑外墙上相邻户开口之间的墙体宽度不应小于1.0m;小于1.0m时,应在开口之间设置突出外墙不小于0.6m的隔板。
7.5.3 住宅建筑墙体保温材料宜采用燃烧性能为A级的保温材料,不应采用B2级保温材料,严禁采用B3级保温材料。
7.5.4 建筑的屋面外保温系统,当屋面板的耐火极限不低于1.00h时,保温材料的燃烧性能不应低于B2级;当屋面板的耐火极限低于1.00h时,不应低于B1级。采用B1、B2级保温材料的外保温系统应采用不燃材料做防护层,防护层厚度不应小于10mm。
7.5.5 当建筑的屋面和外墙外保温系统均采用B1、B2级保温材料时,屋面与外墙之间应采用宽度不小于500mm 的不燃材料设置防火隔离带进行分隔。
7.5.6 住宅建筑的防火墙,应符合下列规定:
1 防火墙应为不燃性墙体。
2 建筑外墙为难燃性墙体时,防火墙应凸出墙的外表面0.4m 以上,且防火墙两侧的外墙均应为宽度均不小于2.0m的不然性墙体,其耐火极限不应低于外墙的耐火极限。
建筑外墙为不燃性墙体时,防火墙可不凸出墙的外表面,紧靠防火墙两侧的门、窗、洞口之间最近边缘水平距离不应小于2.0m;采取设置乙级防火窗等防止火灾水平蔓延的措施时,该距离不限。
7.5.7 建筑内的防火墙不宜设置在转角处,确需设置时,内转角两侧墙上的门、窗、洞口之间最近边缘的水平距离不应小于4.0m;采取设置乙级防火窗等防止火灾水平蔓延的措施时,该距离不限。
7.5.8 疏散楼梯间靠外墙设置时,楼梯间、前室及合用前室外墙上的窗口与两侧门、窗 、洞口最近边缘的水平距离不应小于1.00m。
7.5.9 高层住宅不宜设置四边封闭的内天井。
8 室内环境
8.1 日照
8.1.1 每套住宅至少应有一个居住空间能获得冬季日照。
8.1.2 需要获得冬季日照的居住空间不应低于大寒日日照2小时的标准,且窗洞口的宽度不应小于0.60m。
8.2 天然采光
8.2.1 卧室、起居室(厅)、厨房应有直接天然采光。
8.2.2 卫生间宜有直接天然采光。当住宅套内设置3个及3个以上卫生间时,至少1个卫生间应能直接获得天然采光。
8.2.3 卧室、起居室(厅)、厨房的采光不应低于采光等级Ⅳ级的采光标准值,侧面采光的采光系数不应低于2%,且应进行采光计算。
8.2.4 卧室、起居室(厅)、厨房的采光窗洞口的窗地面积比不应低于1/6。
8.2.5 当卫生间、楼梯间设置采光窗时,采光窗洞口的窗地面积比不应低于1/12。
8.2.6 采光窗的窗洞口上沿距地面高度不宜低于2.00m。
8.2.7 住宅建筑的公共门厅、楼梯间、走廊等公共空间和地下的商业、管理用房等地下空间宜有直接天然采光。
8.3 自然通风
8.3.1 卧室、起居室(厅)、厨房应有自然通风。
8.3.2 住宅的平面空间组织、剖面设计、门窗的位置、方向和开启方式的设置,应有利于组织室内自然通风。单朝向住宅宜采取改善自然通风的措施。
8.3.3 每套住宅的自然通风开口面积不应小于地面面积的5%。
8.3.4 采用自然通风的房间,其通风开口面积应符合下列规定:
1 卧室、起居室(厅)、明卫生间的直接自然通风开口面积不应小于该房间地板面积的1/15;当采用自然通风的房间外设置封闭阳台时,阳台的自然通风开口面积不应小于采用自然通风的房间和阳台地板面积总和的1/15;
2 厨房的直接通风开口面积不应小于该房间地板面积的1/10,并不得小于0.60m?。当厨房外设置封闭阳台时,阳台的自然通风开口面积不应小于厨房和阳台地板面积总和的1/10,并不得小于0.60m?。
8.3.5 住宅的自然通风开口应采取可调节换气量的措施。
8.4 隔声与降噪
8.4.1 卧室、起居室(厅)内的噪声级,应符合下列规定:
1 昼间卧室内的允许噪声(A 声级)不应大于45dB;
2 夜间卧室内的允许噪声级(A 声级)不应大于35dB;
3 起居室(厅)的允许噪声级(A 声级)不应大于45dB。
8.4.2 分户墙和分户楼板的空气声隔声性能应符合下列规定:
1 分户墙和分户楼板,空气声计权隔声量+粉红噪声频谱修正量(Rw+C)应大于50dB;
2 分隔住宅和非居住用途空间的楼板,空气声计权隔声量+交通噪声频谱修正量(Rw+Ctr)应大于51dB。
8.4.3 卧室、起居室(厅)的分户楼板的计权规范化撞击声压级(Ln,w)应小于65dB。
8.4.4 住宅建筑的体形、朝向和平面布置应有利于噪声控制。卧室,起居室(厅)宜布置在背向噪声源的一侧。
8.4.5 当卧室,起居室(厅)布置在噪声源一侧时,外窗应采取隔声降噪措施,其空气声计权隔声量+交通噪声频谱修正量(Rw+Ctr)应不小于30dB。
8.4.6 当内天井、凹天井中设置相邻户间窗口时,宜采取隔声降噪措施,且卧室及起居室的外窗的空气声计权隔声量+交通噪声频谱修正量(Rw+Ctr)应不小于30dB。
8.4.7 当居住空间与可能产生噪声的房间相邻时,分隔墙和分隔楼板应采取隔声降噪措施;设置空调室外机时,应采取控制噪声和振动的措施。
8.4.8 电梯不宜紧邻起居室(厅)布置。受条件限制起居室(厅)紧邻电梯布置时,必须采取有效的隔声和减振措施。
8.4.9 水、暖、电、气管线穿过楼板和墙体时,孔洞周边应采取密封隔声措施。
8.5 保温与隔热
8.5.1 住宅的外围护结构的热工设计应符合国家及北京市现行节能设计标准的相关规定。
8.5.2 住宅的屋面宜采用浅色饰面、增加屋顶绿化等隔热措施。
8.5.3 住宅的朝东、朝西主要房间的外窗(不包括封闭式阳台的透明部分)应设置展开或关闭后,可以全部遮蔽窗户的外遮阳设施。
8.5.4 住宅朝南向外窗宜设置水平外遮阳或活动外遮阳。当采用天窗、斜屋顶窗采光时,应采取活动遮阳措施。
8.5.5 住宅的屋面、地面、外墙、外窗应采取防止雨水和冰雪融化水侵入室内的措施。
8.5.6 住宅的屋面和外墙的内表面在设计的室内温度、湿度条件下不应出现结露。
8.6 室内空气质量
8.6.1 住宅室内装修设计宜进行环境空气质量预评价。
8.6.2 在选用住宅建筑材料、室内装修材料以及选择施工工艺时,应控制有害物质的含量,并宜选用具有改善室内环境功能的材料。
8.6.3 住宅室内空气污染物的活度和浓度应符合下表的规定。

9 建筑结构
9.1 一般规定
9.1.1 住宅结构设计应满足建筑使用功能的要求,要精心设计。结合工程具体情况,做到安全、适用、耐久、经济,并尽可能技术先进,以确保设计质量。
9.1.2 住宅结构设计使用年限不得少于 50 年,结构安全等级不应低于二级。
9.1.3 住宅结构设计的活荷载、风荷载、雪荷载、永久荷载不得小于国家荷载规范取值。
9.1.4 住宅建筑结构必须进行抗震设计,抗震设防类别不应低于丙类。本市不同地区的抗震设防烈度、设计基本地震加速度值和设计地震分组按下表采用:

9.1.5 住宅结构应力求体型简单、规则,避免采用对抗震不利的结构,设计应根据抗震概念设计的要求明确形体的规则性;不规则的应按规定采取加强措施;特别不规则的应进行专门研究和论证,采取特别的加强措施;不应采用严重不规则的建筑。
9.1.6 住宅建筑结构材料应具有规定的力学性能、工艺性能和耐久性能,并符合节约资源和保护环境的原则。
9.1.7 住宅建筑结构应能承受在建造和正常使用过程中可能发生的各种作用和环境影响。在结构设计工作年限内,住宅建筑结构和结构构件必须满足安全性、适用性和耐久性要求。
9.1.8 住宅建筑应避免因局部破坏而导致整个结构丧失承载能力和稳定性。
9.1.9 抗震设防烈度为 8 度及以上的住宅结构可采用隔震或消能减震结构,并应按国家现行标准《建筑抗震设计规范》GB50011 和《建筑消能减震技术规程》JGJ297 的规定执行。
9.1.10 住宅结构构件不应存在影响结构安全的裂缝。
9.2 住宅结构体系及相关规定
9.2.1 住宅结构的设计分为高层及多层住宅结构设计体系。
9.2.2 多层住宅结构体系,可采用砖砌体、砌块砌体(包括混凝土砌块、轻集料混凝土砌块的无筋和配筋砌体)结构,也可采用全现浇钢筋混凝土剪力墙结构、装配整体式混凝土结构、钢(轻)结构等结构体系。砖砌体不得采用烧结粘土砖、烧结页岩砖;基础(±0)以上部位不得采用实心砖。
9.2.3 高层住宅结构体系,可采用全现浇钢筋混凝土剪力墙结构、装配整体式混凝土结构、装配式钢结构、钢-混凝土混合结构等结构体系。
9.2.4 多层砌体结构的层数、总高度和总长度不应超过以下规定:

注:各层横墙较少的多层砌体住宅总高度应比表9.2.4-1中的规定降低3m、层数减少一层;各层横墙很少的多层住宅房屋,还应再减少一层。

注:墙体伸缩缝应与结构的其他变形缝相重合,缝的宽度应满足各种变形缝的变形要求,在进行立面处理时,必须保证其缝隙的变形作用。
9.2.5 钢筋混凝土住宅的最大适用高度按表9.2.5确定:

注:1、房屋高度指室外地面到主要屋面的高度,不包括局部出屋顶的部分;
2、框架-剪力墙结构,主要是指公寓类住宅;
3、部分框支剪力墙结构指首层或底部两层为框支的结构,不包括仅个别为框支墙的结构;
4、乙类建筑可按本表确定其最大适用高度;
5、装配整体式剪力墙结构和装配整体式框支剪力墙结构,在规定水平力作用下,当预制剪力墙构
件底部承担的总剪力大于该层总剪力的50%时,其最大适用高度应适当降低;当预制剪力墙构件
底部承担的总剪力大于该层总剪力的80%时,最大适用高度应取表9.2.6中括号内的数值;
6、高层装配整体式剪力墙结构以及装配整体式部分框支剪力墙结构的最大适用高宽比不宜超过5,否则应补充结构在设防烈度水平地震作用下的内力分析。
9.2.6 钢筋混凝土住宅的抗震等级按表9.2.6确定:

9.2.7 现浇钢筋混凝土剪力墙住宅结构,剪力墙两端和洞口两侧应设置边缘构件,边缘构件包括暗柱、端柱和翼墙;剪力墙底层墙肢的底截面的轴压比大于表9.2.7规定的一、二、三级剪力墙底部加强部位及相邻的上一层墙肢两端应设约束边缘构件。

9.2.8 部分框支剪力墙结构,底部加强部位及相邻的上一层墙肢两端应设置符合约束边缘构件要求的翼墙或端柱,洞口两侧应设置约束边缘构件;不落地剪力墙应在底部加强部位及相邻的上一层的墙肢两端设置约束边缘构件。
9.2.9 墙肢两端及洞口两侧未设约束边缘构件时均应设置构造边缘构件。
9.2.10 当地下室顶板作为上部结构的嵌固部位时,地下一层剪力墙墙肢端部边缘构件纵向钢筋的截面面积,不应少于地上一层对应墙肢端部边缘构件纵向钢筋的截面面积。
9.2.11 装配式钢结构住宅的最大使用高度按表9.2.11确定:
表9.2.11钢结构住宅的最大适用高度(m)

注:1 框架柱包括全钢柱和钢管混凝土柱;
2 装配式钢结构的最大适用高宽比不宜超过6。
9.2.12 装配式钢结构住宅的抗震等级:当高度≤50m 时为三级,当高度>50m时为二级。
9.2.13 轻钢轻混凝土结构住宅最大适用高度及层数限值按表9.2.13确定。

9.2.14 住宅建筑当需要采用外围护系统时,应满足相关规定,保证住宅结构的安全。外围护系统的设计使用年限应与主体结构相协调。
9.3 结构计算
9.3.1北京地区建造的住宅均应进行抗震设计。住宅结构抗震设计地震作用应根据抗震类别、抗震设防烈度、基本地震加速度、设计地震分组,按国家现行标准《建筑抗震设计规范》GB50011-2010(2016 年版)及《高层建筑混凝土结构技术规程》JGJ3-2010的规定采用。
9.3.2 住宅永久荷载标准值应充分考虑隔墙自重、地面做法及装修自重。
9.3.3 楼面均布活荷载标准值应按下表取值:

注:设计楼面梁、墙、柱及基础时,上述楼面荷载标准值折减系数按国家现行规范《建筑结构荷载规范》GB50009-2012 第 5.1.2 条的规定取值。
9.3.4 屋面均布活荷载标准值应按下表取值:

基本风压应按国家现行规范《建筑结构荷载规范》GB50009-2012 的规定采用,对于房屋高度大于60m 的高层住宅承载力设计时应按基本风压的1.1倍采用。
9.3.5 地基承载力验算,天然地基及复合地基均应按下列公式进行承载力验算:
轴心荷载作用下

9.4 地基基础设计
9.4.1 北京地区住宅应按现行《北京地区建筑地基基础勘察设计规范》DB11-501-2009(2016 年版)进行地基基础设计。
9.4.2 住宅建筑选择建造场地时,应根据工程需要及北京地震活动情况、工程地质和地震地质的有关资料,对抗震有利、一般、不利和危险地段做出评价。对不利地段,应尽量避开,当无法避开时应采取有效的措施。严禁在危险地段建造住宅。
9.4.3 无地下室的多层住宅,在满足地基稳定和强度、变形要求的前提下,基础宜尽量浅埋,但埋深应不小于冻结深度。北京地区冻结深度,应按现行的《北京地区建筑地基基础勘察设计规范》DB11-501-2009(2016 年版附录E的规定执行。基础如采用灰土垫层,埋深应算至垫层上皮,若为混凝土垫层,应算至垫层底面。
9.4.4 高宽比大于4的高层住宅,在地震作用下基础底面不宜出现脱离区(零应力区);其他住宅,基础底面与地基土之间脱离区(零应力区)面积不应超过基础底面面积的15%。
9.4.5 住宅基础选型:基础设计应根据地质条件、结构类型及使用功能、建筑高度及体型、荷载大小及分布情况、有无地下室及其利用情况、相邻建筑的基础情况、工程建设地区经验、施工条件及材料供应情况、抗震设防标准等因素进行综合分析。选择经济合理的基础形式,以保证本建筑物及周围建筑物不致产生过量沉降或倾斜,并能满足建筑物的正常使用。
9.4.6 墙下条形基础及柱下条形基础的基础面积计算时,条形基础相交处,不应重复计入基础面积。
9.4.7 与住宅建筑临近的永久性边坡的设计工作年限,不应低于受其影响的住宅建筑的结构设计工作年限。
9.5 楼(屋)盖、阳台、雨篷、空调板等悬挑构件
9.5.1 钢筋混凝土楼(屋)盖分整体式、预制装配式及预制装配叠合整体式。
9.5.2 钢筋混凝土现浇楼板的设计厚度不宜小于120mm。
9.5.3 阳台、雨篷、空调板等属悬挑构件,悬挑部分除了按一般悬臂板、悬臂梁计算外,对支撑悬挑构件的非悬挑部分,要进行受弯、受剪和受扭承载能力的验算。
9.5.4 室外悬挑构件厚度不应小于100mm。
9.5.5 雨篷需根据实际情况,适当考虑积水荷载的要求。
9.6 住宅结构的其他构造规定
9.6.1 砌体结构住宅应符合下列规定:
1 砌体结构住宅应满足现行《建筑抗震设计规范》GB50011-2010(2016年版)及《砌体结构设计规范》GB50003-2011 等有关规范的有关规定;
2 应采取有效措施加强屋面、外墙或外露构件的保温设计,减少温度变化和日照变化对混凝土构件产生的不利影响。屋面必须设置保温隔热层;
3 顶层屋面板下应设置现浇钢筋混凝土圈梁,并沿内外墙拉通,房屋两端圈梁下的墙体内宜设置水平钢筋;
4 斜屋面应在檐口处设置现浇钢筋混凝土圈梁;
5 顶层及女儿墙砂浆强度等级不低于M7.5(Mb7.5、Ms7.5);
6 屋顶女儿墙应设置构造柱,构造柱间距不宜大于4m,构造柱钢筋应锚入顶层屋面板下设置的现浇钢筋混凝土圈梁内,并应伸至女儿墙顶与现浇混凝土压顶浇筑在一起;
7 底层和顶层(包括跃层) 应沿外墙在窗台标高处设置通长现浇钢筋混凝土窗台梁,高度不小于120mm,且宜为砌块模数,宽度同墙宽,混凝土强度等级不应小于C20,纵筋不少于4φ10,箍筋φ6@200;其它层沿外墙在窗台标高处应设置通长现浇钢筋混凝土板带,板带的混凝土强度等级不应小于C20,纵向配筋不宜少于3φ8。上述纵向钢筋均应与构造柱可靠连接。
9.6.2 钢筋混凝土结构住宅应符合下列规定:
1 钢筋混凝土结构住宅应满足现行《混凝土结构设计规范》GB50010-2010(2015 年版)、《建筑抗震设计规范》GB50011-2010(2016 年版)及《高层建筑混凝土结构技术规程》JGJ3 等有关规范、规程的有关规定;
2 住宅设计时建筑平面宜规则,避免平面形状突变。当平面有凹口及洞口时,凹口、洞口周边楼板的配筋宜适当加强。当楼板平面形状不规则时,宜设置梁使之形成较规则的平面。屋面板及板厚≥160mm 的楼板,跨中上部钢筋应将支座1/2负筋面积拉通或另设?8@200mm 钢筋网并与支座负筋搭接;
3 现浇板砼强度等级不宜大于C30, 否则必须有减少混凝土收缩的设计措施。
4 住宅长度大于40m 时,宜在房屋中部设置后浇带。超长结构应进行温度变形分析,并采取有效措施减少温度应力产生的影响。
5 预埋管线不应集中通过楼板,应分散布置,在同一位置管线重叠不得超过两层,管线必须布置在上下层钢筋网片之间,并使管壁至板上下边缘净距不应小于25㎜。若在跨中没有上排钢筋,则沿管线方向在板的上表面增设φ6双向间距100宽600㎜的钢筋网片,多根管线并排时,增设钢筋网片的宽度应超出管线每边300㎜。
6 现浇剪力墙结构伸缩缝最大间距在土中或室内时为45m、露天时为30m。如有充分依据和可靠措施,伸缩缝间距可适当增大。
9.6.3 住宅剪力墙结构设置转角窗时,应满足以下构造做法:
1 角窗墙肢厚度当为高层时不应小于200mm;多层时不应小于180mm;
2 角窗两侧墙肢长度,当为一字型墙肢时,除满足强度要求外尚应大于8倍墙厚及角窗悬挑长度1.5倍的较小值;
3 角窗折梁配筋应加强,并按抗扭构造配置箍筋及腰筋;
4 角窗折梁上下主筋伸入墙内的锚固长度应

顶层时折梁上铁端部另加5d向下的直勾,主筋锚入墙范围内的墙体竖向分布筋应向内弯折并钩住梁主筋;
5 角窗两侧墙体应沿全高设置约束边缘构件,约束边缘构件(暗柱)长度不宜小于3倍墙厚且不小于600mm;
6 转角窗房间的楼板应适当加厚,应采用双层双向配筋,板内宜设置连接两侧墙端暗柱的暗梁。多层住宅角窗处的板厚不应小于120mm,高层住宅角窗处的板厚不应小于140mm。
10建筑设备
10.1 一般规定
10.1.1建筑设备设计应满足住宅建筑功能需求,做到安全可靠、经济合理、技术先进、便于施工及维护。应设置室内给排水系统及采暖设施。
10.1.2建筑设备设计应采用符合国家现行有关技术标准的节能环保、高效的产品,严禁使用已被国家淘汰的产品。
10.1.3每套住宅应在下列系统设置如下计量装置:
1各类生活供水系统的水表;
2设有集中采暖(集中空调)系统时的分户热计量装置;
3设有燃气系统时的燃气表。
10.1.4水表、热量表、燃气表的设置应便于管理。
10.2 给水排水
10.2.1住宅各类生活供水系统水质应符合国家现行有关标准的规定。
10.2.2住宅给水定额及小时变化系数应满足《建筑给水排水设计规范》GB50015及《民用建筑节水设计标准》GB50555中相关规定。
10.2.3居住小区应充分利用市政管网水压直接供水、叠压供水。叠压供水设计方案应经当地供水行政主管部门及供水部门批准认可。当城镇给水管网的水压、水量不足时,应设置贮水调节和加压装置。
10.2.4入户管的供水压力不应大于0.35MPa。
10.2.5套内用水点压力不应大于0.2MPa,且不应小于用水器具的最低工作压力。
10.2.6给水管道应采用钢塑复合管、给水不锈钢管或给水铜管或符合饮用水卫生标准的其他管材。阀门及配件应采用不易锈蚀、无毒、无污染的材质。
10.2.7卫生器具和配件应采用节水型产品,且应符合国家现行标准《节水型生活用水器具》CJ/T164、《节水型产品通用技术条件》GB/T 18870的有关要求,不得配置一次冲水量大于 6L的坐便器。
10.2.8生活加压水泵应选用低噪声节能型产品,生活加压泵组及泵房应采取减振防噪措施。
10.2.9吊顶内或明装给排水管道应做防结露保温,防结露保护层的计算和构造,可按现行国家标准《设备及管道保冷技术通则》GB/T11790执行。
10.2.10住宅公共部位有可能结冻的给水、排水管道应有防冻措施。
10.2.11住宅应设置热水供应设施或预留安装热水供应设施的条件。
10.2.12生活热水的设计应符合下列规定:
1集中生活热水系统配水点的供水水温不应低于45°C;
2集中生活热水系统应在套内热水表前设置循环回水管;
3集中生活热水系统热水表后或户内热水器不循环的热水供水支管,长度不宜超过8m。
10.2.13热水管、贮热水箱均应保温。
10.2.14住宅小区中水水源的选择要依据水量平衡和技术经济比较确定,并首选优质杂排水;当有市政中水时,优先选用市政中水。
10.2.15中水管道严禁与生活饮用水给水管道连接。
10.2.16中水管道上不得装设取水龙头。当装有取水接口时,必须采取严格的防止误饮、误用的措施。
10.2.17给水泵房内生活饮用水池(水箱)的上部,不得有污废水及中水供水管道穿越。
10.2.18屋面雨水管道应采用承压、不易锈蚀的管材,并应符合国家及行业现行标准的要求。
10.2.19厨房和卫生间的排水立管应分别设置。排水管道不得穿越卧室。
10.2.20废水立管、污水立管应暗敷;排水立管不应设置在卧室内,且不宜设置在靠近与卧室贴邻的内墙。排水立管宜采用低噪声管材。
10.2.21污废水排水横管宜设置在本层套内,实现同层排水。
10.2.22污废水排水立管的检查口应每层设置。
10.2.23设置淋浴器和洗衣机的部位应设置地漏,设置洗衣机的部位宜采用能防止溢流和干涸的专用地漏。洗衣机设置在阳台上时,其排水不应排入雨水管。
10.2.24当构造内无存水弯的卫生器具与生活污水管道连接时,必须在排水口以下设存水弯。存水弯的水封深度不得小于50mm。严禁采用活动机械密封替代水封。
10.2.25地下室、半地下室中低于室外地面的卫生器具和地漏的排水管,不应与上部排水管连接,应设置集水设施用污水泵排出。
10.3 采暖
10.3.1 住宅的供暖方式,应根据资源情况、环境保护、能源的高效率应用、用户对供暖空调预期费用的可承受能力等综合因素,经技术经济分析确定。住宅宜设置集中供热系统。
10.3.2 热源应根据建筑物规模、用途、建设地点的能源条件、结构、价格以及国家节能减排和环保政策的相关规定等,通过综合论证确定,并应符合下列规定:
1 在有可利用的废热或工厂余热的区域,应优先采用工业废热或工厂余热;
2 不具备第 1 款的条件,但在城市或区域热网供热范围内的地区应优先采用城市或区域热网;
3 在有条件且技术经济合理的情况下,热源宜优先采用可再生能源。
4 除无集中热源且符合下列情况之一者外,在设计时不应采用直接电热供暖设备作为居住建筑供暖的主体热源:无燃气源,用煤、油等燃料受到环保或消防严格限制的居住建筑;夜间可利用低谷电进行蓄热、且蓄热式电锅炉不在昼间用电高峰时段启用的居住建筑。
10.3.3 采暖热媒
1 住宅散热器供暖系统应采用不高于85℃的热水作为热媒,宜按 75℃/50℃连续供暖进行设计,供回水温差不宜小于20℃。
2 地面辐射供暖系统应采用不高于60℃的热水作为热媒,供水温度宜采用35-45℃,供回水温差不宜大于10℃,且不宜小于5℃。
3 热水供暖系统应用可靠的水质保证措施,参见《城镇供热管网设计规范》CJJ34。
10.3.4 集中供暖系统设计应计算每一供暖房间的热负荷、建筑总热负荷和单位建筑面积热负荷指标。
10.3.5 住宅集中供暖的设计应进行室内供暖系统的水力平衡计算,并应通过调整环路布置和管径,使并联环路(不包括公用段)的阻力相对差额不大于15%;当不满足要求时,应采取水力平衡措施。
10.3.6 设置供暖系统的普通住宅的室内设计温度,不应低于表10.3.1的规定。

10.3.7 室内主要供暖设施均应设置室温自动控制装置。
10.3.8 室内采用散热器供暖时,供暖系统的制式宜采用双管式,管道布置方式宜采用异程式;当采用单管制时,应在每组散热器的进出水支管之间设置跨越管,且水平串联的散热器不宜超过6组,垂直串联不超过6层。
10.3.9 热水辐射供暖系统应按户划分系统,并配置分水器、集水器;户内应按主要房间或区域配置独立的环路。
10.3.10 设备材料要求:
1 应采用体型紧凑、便于清扫、使用寿命不低于钢管的散热器,且符合供暖系统的压力要求。散热器应明装、外表面刷非金属性涂料。
2 埋设在地面垫层内或镶嵌在踢脚板内的管道材质及壁厚,应根据工程的耐久年限、管材的性能以及系统的工作压力、水质要求等条件确定。
10.3.11 当采用户式燃气热水炉供暖时,应采用全封闭式燃烧、平衡式强制排烟型,且额定热效率应不低于现行国家标准《家用燃气快速热水器和燃气采暖热水炉能效限定值与能效等级》GB20665 中能效等级 1 级规定值。
10.3.12 住宅应以楼栋为对象设置热量表,并以此作为热量结算点,当住宅含有底商时应分别计量。分户热计量装置的选择应满足《供热计量设计技术规程》的要求。
10.3.13 采暖系统设置自动排气阀等设备时要设计在公共空间。
10.3.14 集中供热住宅的采暖系统设计,应符合《供热计量设计技术规程》(DB11/1066)有关要求。
10.4 燃气
10.4.1 住宅管道燃气的供气压力不应高于0.2MPa。住宅内各类用气设备应使用低压燃气,用气设备前(灶前)的燃气压力应在0.75 倍-1.5倍燃具额定范围内。
10.4.2 燃气引入管宜采用室外地上引入,并在室外操作方便的位置设置引入口阀门及阀门箱。
10.4.3 沿外墙或屋面敷设的燃气管道,不得布置在屋面上的檐角、屋檐、屋脊等易受雷击的部位且应采取有效的防雷措施。
10.4.4 户内燃气立管宜设置在具有良好通风条件的厨房或与厨房相连的阳台内,宜明装设置,不得设置在通风排气竖井内。
10.4.5 住宅内燃气表宜明装,可安装在厨房或与厨房相连的阳台内;当燃气表安装在室内相对独立的橱柜内或者集中设置安装在室外的表箱内,应具有良好通风条件,并符合抄表、安装、维修及安全使用的要求。
10.4.6 燃气设备的设置应符合下列规定:
1 燃气设备严禁设置在卧室内;
2 严禁在浴室内安装直接排气式、半密闭式燃气热水器等在使用空间内积聚有害气体的加热设备;
3 户内燃气灶应安装在通风良好的厨房、阳台内;
4 燃气热水器等燃气设备应安装在通风良好的厨房、阳台内或其他非居住房间。
5 敞开楼梯间内不应设置燃气体管道,当住宅建筑的敞开楼梯间内确需设置燃气管道和燃气表时,应采用金属管和设置切断气源的阀门。
10.4.7 烟气的排放应符合下列要求:
1 住宅内各类燃气设备排出的烟气必须排至室外;
2 安装燃气设备的房间应预留安装位置和排气空洞位置;其中,安装燃气热水器的场所还应预留烟气可直接排放至户外大气的排气孔;
3 排气口应采取防风措施;
4 燃气热水器或采暖炉应设置排至室外的专用废气排气管,严禁与排油烟机烟道合用。
10.4.8 住宅内燃气管道不得敷设在卧室、起居室(厅)、暖气沟、电缆沟、烟道、进风道、变电室、配电间和电梯井处。当燃气管道敷设在地下室、半地下室、设备层和地上密闭房间以及竖井、住宅汽车库时,必须对燃气管道采取安全措施。
10.4.9 使用燃气的住宅,每套的燃气用量应根据燃气设备的种类、数量和额定燃气量计算确定,且应至少按一个双眼灶和一个燃气热水器计算。
10.4.10 使用燃气的高层住宅应采用管道供气,使用可燃气体的房间或部位宜靠外墙设置。
10.4.11 住宅内燃气浓度检测报警器、燃气紧急自动切断阀等燃气户内安全设施的设置应符合现行国家标准《城镇燃气设计规范》GB 50028的规定。
10.5 通风
10.5.1 住宅宜采用自然通风与机械通风相结合的复合通风方式。
10.5.2 厨房应设置供厨房房间全面通风且有避风、防雨构造的自然通风设施。
10.5.3 厨房排油烟机的排气管道可通过竖向共用排气道或外墙排向室外。当通过外墙排至室外时,应在室外排气口设置避风、防雨和防止污染墙面的构件。
10.5.4 卫生间应设置防回流的机械通风设施或预留安装机械通风设施的条件。
10.5.5 不设置户式新风系统的新建住宅宜预留设置户式新风系统的土建安装条件。设置户式新风系统时,通风设备宜带热回收功能。户式新风系统的取风口应远离燃气热水器外墙排烟口及厨房油烟外墙排放口。室外新风应先进入卧室、起居室等人员长时间停留的区域。
10.5.6 户式新风系统的最小新风量宜按换气次数法确定,并宜符合表10.5.1规定。

注:居住面积按户式新风系统所服务房间的建筑套内面积计。
10.6 空调
10.6.1 住宅不采用集中空调系统时,居住空间应设置空调设施或预留安装空调设施的位置和条件。
10.6.2 住宅采用集中空调系统时,负荷计算和室内设计参数应符合下列规定:
1 应对每一个空调房间进行热负荷和逐项逐时冷负荷计算。
2 卧室、起居室室内设计温度宜为26℃。
3 无集中新风供应系统的住宅新风换气宜为1次/h。
4 空调系统的夏季冷负荷按所服务区域各空调房间逐时冷负荷的综合最大值确定。
10.6.3 室内空调设备的冷凝水应有组织排放。
10.6.4 空调室外机的安装位置除应满足建筑条文的要求外,还应符合下列规定:
1 在排出空气与吸入空气之间不会发生明显的气流短路,必要时需做散热气流解析。
2 符合周围环境的要求。
3 可方便对室外机进行清扫。
10.6.5 空调系统应设置分室自动温度控制设施。
11 建筑电气
11.1 一般规定
11.1.1 建筑电气的设计应与住宅工程的特点、规模、物业管理和发展规划相适应,应做到安全可靠、经济合理、技术先进、整体美观、维护管理方便。
11.1.2 建筑电气设备应采用符合国家现行有关技术标准的高效、节能环保、性能先进的电气产品,严禁使用已被国家淘汰的产品。
11.1.3 建筑电气设计除应符合本规范外,尚应符合国家及北京市现行有关标准的规定。
11.2 供配电设计
11.2.1 住宅供电负荷分级及计算应符合下列规定:
1 住宅建筑中主要用电负荷的分级应符合表11.2.1-1的规定。

注:1) 其他未列入表中的住宅用电负荷的供电等级宜为三级;
2) 严寒和寒冷地区住宅建筑采用集中供暖系统时,热交换系统的用电负荷等级不宜低于二级;
3) 建筑高度为150m以上的住宅建筑(包括设置商业服务网点的住宅建筑),其消防用电负荷、应急照明、航空障碍照明、应设自备电源供电。
2 根据负荷计算结果应用场合,分为配电负荷计算及配电变压器容量计算。
3 每套住宅配电指标不应低于表11.2.1的规定。

注:1) 采用电取暖的用户,每户配电指标增加 2kW;
2) 当每套住宅建筑面积大于150m2时,超出的建筑面积配电指标按照50W/m2的标准计算;
3) 当采用单位面积负荷密度法计算居住区用电负荷时,按照不小于60W/m2的标准计算;
4) 住宅小区配套设施宜按照60W/m2的标准配置;
5) 配电线路的负荷计算指标应预留电动汽车充换电设施及高档住宅集中供冷的用电容量。
11.2.2 供配电系统设计应符合下列规定:
1 居住区配电室由上级变电站或开关站引来10kV电源,分为公用配电室和用户配电室。公用配电室指由电力经营企业运行维护,为居民小区和用
电设备计算容量小于100kW的住宅配套公建供电的配电室,其他为用户配电室。
2 公用配电室单台变压器容量不宜超过800kVA。
3 公用配电室应设置于负荷中心区域,低压供电半径五环内不宜大于150m,其他区域不宜大于250m,同时应满足压降要求。
4 新建居民住宅区不宜采用预装式变电站的供电模式。
5 当住宅建筑电源由公用配电室引来时,进线处应设低压电缆分支箱。
6 住宅配电系统应符合下列规定:
1)每套住宅通常采用单相电源进户,用电负荷大于12kW或有三相用电设备时可采用三相电源进户。
2)采用三相电源供电的住宅,三相电源为三相设备供电,套内每层或每间房的单相用电设备、电源插座应采用同相电源供电。
3)每幢住宅楼、每一条配电干线的三相负荷分配宜均匀、平衡。
4)每套住宅应设置可同时断开相线和中性线并具有隔离功能的电源进线开关电器。
5)由于气体放电灯、电子镇流器、电视机等电子设备产生的高次谐波及三相负荷不平衡的影响,住宅楼配电干线的中性线截面应与相线同截面。
6)住宅楼功率因数,多层住宅及高层住宅的照明进线取0.85计算,高层住宅的动力进线取0.8计算。
7)套内起居厅、卧室插座宜采用带有USB接口的组合插座,并宜预留为智能家居设备供电的电源插座。
11.2.3 住宅电能计量应符合下列规定:
1 电能计量的原则应符合下列规定:
1)电能表应按照确定的电价计费需要配置。电价的确定按国家电价政策执行。
2)住宅建筑供配电系统中存在多种电价用电负荷时,应分别装设电能计量装置。
3)新建住宅居民用电应实行一户一表,未实行一户一表的住宅小区应逐步实行。
4)有新能源发电并网需求的用户,应在并网点上装设送、受电双向峰谷分段多费率电能计量装置。
5)供热计量系统应单独设计供电回路,并设置电能计量装置。
2 计量表配置方式应符合下列规定:
1)居民住宅用户按照一户一表安装专用计量箱,配置单相或三相10(100)A 智能电表,智能电表表计前安装隔离开关,表计后安装具备控制及保护功能的微型断路器。
2)居民住宅用户配电指标大于12kW或有三相用电设备时可采用三相计量。
3)普通低压供电的用户,负荷电流为100A及以下时,智能电表计量装置接 线宜采用直接接入式;负荷电流为100A以上时,宜采用经电流互
感器接入,电流流互感器及计量表计应安装在专用计量箱。
4)电能计量装置应独立封闭, 便于客户观察电能表示数并具备防窃电
功能。
3 信息采集系统的设置应符合下列规定:
1)计量装置应实现用电信息采集。
2)新建住宅小区,应同步建设光纤信道。
3)居民计量装置应配置集中抄表终端,对有需要接入公共电网分布式能源系统的用户配置分布式能源监控终端。
11.3 照明设施
11.3.1 公共照明应符合下列规定:
1 住宅建筑的门厅、前室、公共走道、楼梯间等应设置人工照明,应采用高效节能的照明装置和延时自熄开关。
2 当住宅建筑设置航空障碍标志灯时,其电源应按该住宅建筑中最高负荷等级要求供电。
11.3.2 应急照明应符合下列规定:
1 高层住宅建筑的封闭楼梯间、防烟楼梯间及其前室、消防电梯间的前室或合用前室、长度超过20m的内走道、避难走道、避难层(间)应设置疏散照明。
2 建筑高度大于54m的住宅建筑应设置灯光疏散指示标志。消防安全疏散标志的设置应符合《消防安全疏散标志设置标准》DB11/1024的有关规定。
3 高层住宅建筑楼梯间应急照明可采用不同回路跨楼层竖向供电,每个回路的光源数或发光二极管灯具数不宜超过20个。
4 住宅底商应急照明负荷等级应与住宅建筑最高供电负荷等级相同。建筑高度大于27m的住宅建筑底商应单独设置应急照明配电箱。
5 当应急照明采用节能自熄开关控制时,必须采取消防时应急点亮的措施。
6 应急照明应由消防专用回路供电。应急照明的回路上不应设置与其无关的电源插座,当需要设应急灯专用充电插座时应单独组成回路。
7 应急照明的备用电源及照度要求还应符合《建筑设计防火规范》GB50016的规定。
11.3.3 套内照明应符合下列规定:
1 起居室(厅)、餐厅等场所的照明应在顶部至少预留一个电源出线口。
2 卧室、书房、卫生间、厨房的照明宜在顶部预留一个电源出线口,灯位宜居中。
3 卫生间等潮湿场所,宜采用防潮易清洁的灯具;卫生间的灯具位置不应安装在0、1 区内及上方。装有淋浴或浴盆卫生间的照明回路,宜装设剩余电流动作保护器,灯具、浴霸开关宜设于卫生间门外,否则需采用防溅型开关并设置在2区之外。
4 起居室、通道和卫生间照明开关,宜选用夜间有光显示的面板。
11.3.4 每套住宅电源插座的数量应根据套内面积和家用电器设置,且应符合表 11.3.4 的规定。

11.4 防雷接地
11.4.1 住宅建筑楼内配电系统的接地形式应采用 TN-S 系统。
11.4.2 住宅建筑各电气系统的接地宜共用接地装置,接地装置应优先利用建筑的自然接地体,接地装置的接地电阻值应满足其中电气系统最小值的要求。
11.4.3 住宅建筑应做总等电位联结,装有淋浴或浴盆的卫生间应做局部等电位联结。
11.4.4 住宅建筑套内下列电气装置的外露可导电部分均应可靠接地:
1 固定家用电器、手持式及移动式家用电器的金属外亮;
2 家居配电箱、家居配线箱、家居控制器的金属外壳;
3 线缆的金属保护导管、接线盒及终端盒;
4 I 类照明灯具的金属外壳。
11.4.5 接地干线可选用热镀锌扁钢或铜导体,接地干线可兼作等电位联结干线。
11.4.6 住宅建筑电气竖井内的接地干线,每隔 3 层应与相近楼板钢筋做等电位联结。
11.4.7 楼顶的太阳能热水器、太阳光伏发电系统应按要求采取防雷措施。
11.4.8 住宅建筑的防雷设计要求应符合国家现行标准《建筑物防雷设计规范》GB50057 及《建筑物电子信息系统防雷技术规范》GB50343 的相关规定。
11.5 信息基础设施系统
11.5.1 住宅建筑的信息基础设施系统包含建筑规划用地红线内住宅区内地下通信管道、光缆交接箱、住宅建筑内管槽及通信线缆、配线设备,住户内家居配线箱、户内管线及各类通信及有线广播电视业务信息插座,预留的设备间、光电转换间、 电信间、有线广播电视机房等设备安装空间。
11.5.2 住宅区和住宅建筑内光纤到户通信设施工程的设计,必须满足多家电信业务经营者平等接入、用户可自由选择电信业务经营者的要求。
11.5.3 新建住宅区和住宅建筑的通信及有线广播电视设施应采用光纤到户方式建设。
11.5.4 新建住宅区和住宅建筑内的地下通信及有线广播电视管道、配线管网、电信间、设备间等通信及有线广播电视设施,必须与住宅区及住宅建筑同步建设。
11.5.5 住宅建筑外信息管道包括管道、人(手)孔及落地交接箱,应符合《住宅区和住宅建筑内光纤到户通信设施工程设计规范》GB50846 及《民用建筑通信及有线广播电视基础设施设计规范》DB11/T804 的规定。
11.5.6 住宅建筑内信息管道应符合下列规定:
1 信息配线箱的基本要求
1)线缆竖井、楼道综合配线箱、有线广播电视放大箱、过路箱(盒),应设置在建筑物的公共区域。
2)楼道综合配线箱、有线广播电视放大箱,宜设置在通信及有线广播电视终端相对集中,利于暗管敷设的地方,不宜设置在人行楼梯踏步侧墙上。
3)楼道综合配线箱宜为通信及有线广播电视共用箱体。
4)住宅建筑的楼道综合配线箱设置应符合表 11.5.6 的规定:

注:每户以通信、有线广播电视各设置2个信息点计算。
5)终端综合配线箱应设置在用户内靠近线缆竖井或楼道综合配线箱一侧。终端综合配线箱通过入户暗管与楼道竖井或楼道综合配线箱连接,通过预埋暗管分别与用户各房间的出线盒及有线广播电视终端盒进行连接。入户通信及有线电视的光缆信息点各设置1个,信息点的接入光缆不少于2芯,入户有线电视同轴电缆信息点不少于2个。光缆在终端综合配线箱内必须预留足够的空间放置用户终端设备和出线盒。
2 信息暗管敷设要求应满足以下要求:
1)暗管直线敷设超过30m时,暗管中间应加装过路箱(盒)。
2)暗管弯曲敷设时,其路由长度应小于15m,且该段内不得有S弯。连续弯曲超过两次时,应加装过路箱(盒)。
3)暗管的弯曲管路夹角不得小于 90°。
4)每住宅单元或每住宅内,宜设置独立的暗线管网。
5)线缆暗管、引入线暗管弯曲半径不得小于该管外径的10倍。
6)在易受电磁干扰影响的场合,暗管应采用钢管并良好接地。
7)暗管穿越沉降缝或伸缩缝时,应作伸缩或沉降处理,管材宜采用钢管。
8)引入建筑物的管线,应根据建筑物的规模及特点确定一处或多处。
9)暗管不应穿越易燃、易爆、高温、高电压、高潮湿及有较强振动的地段或场合,如不可避免时应采取保护措施。
10)楼道综合配线箱至终端综合配线箱、过路盒、终端盒的暗管,不宜穿越非本户的其他房间,如必须穿越时,暗管不得在其户内开口。
3 暗管及线槽尺寸要求应满足以下要求:
1)管内穿放同轴电缆、4芯以上光缆时,直线管的管径利用率应为50%~60%,弯曲管的管径利用率应为40%~50%;穿放五类及以上对绞电缆或4芯及4芯以下光缆的管截面利用率应为25%~30%。
2)五类及以上对绞电缆采用暗管穿放至信息插座时,电缆不宜超过4根。
3)通信竖向主干管内径宜为50~100mm。水平连接沟通的通信主干管内径宜为50~100mm,采用线槽时应根据线缆的条数确定规格。
4)多层建筑内有线广播电视竖向主干采用不小于100 mm×50mm的线槽或2根内径应不小于Φ50mm 的钢管;高层建筑内竖向主干应采用不小于100mm×100mm的线槽。
5)民用建筑单元间或每座水平连接沟通的有线广播电视主干线槽应不小于100mm×50mm,或采用2根内径不小于Φ50mm的钢管。
6)住宅建筑每个用户设置2根内径Φ20mm 的入户暗管。
11.5.7 建筑物内机房及设备间应满足以下要求:
1 设置要求
1)通信机房的设置,应符合以下规定:
2000~10000 信息点的民用建筑应设置固定通信机房,固定通信机房宜设置在物业管理中心。
机房设置须避开电磁干扰区,应符合《数据中心设计规范》 GB50174的要求。
机房的位置应选择在建筑区域的中心位置,宜选择在公共建筑首层不易受淹处,应方便搬运设备的车辆进出,便于机房进出线缆和管道的接入。
建筑占地面积每0.1平方公里应设置1个宏蜂窝基站机房或室外一体化基站位置,宏蜂窝基站的数量在规划阶段确定。
楼内宏蜂窝基站机房应选择靠近楼顶的房间,民用建筑内应每5万m?设置1个覆盖系统机房。
室内覆盖系统机房应选择靠近建筑物中心区域弱电竖井的房间。
设备间的使用面积应根据配线设备类型、数量、容量、尺寸进行计算。
每一个高层民用建筑宜设置一个固定通信设备间,固定通信设备间宜设置在地下一层或首层;多栋低层、多层、中高层民用建筑群宜每一个配线区设置一个固定通信设备间,固定通信设备间宜设置在地下一层或首层。
固定通信和移动通信机房和设备间的配置面积及工艺要求应符合《住宅区和住宅建筑内光纤到户通信设施工程设计规范》GB 50846,《民用建筑通信及有线广播电视基础设施设计规范》DB11/T 804 的有关规定。
2)有线广播电视机房的设置,应符合以下规定:
对于2000个有线电视信息点以上民用建筑应设置有线广播电视机房。2000个有线电视信息点以下的民用建筑应设置落地交接箱。机房宜设在配套公用建筑首层及以上,位于民用建筑的中心地域。宜选择在公共建筑一层不易受淹处,方便搬运设备的车辆进出,便于机房进出线缆和管道的接入。
机房设置须避开电磁干扰区,应符合《数据中心设计规范》GB50174 的要求。
机房室内应做好防水防潮处理,严禁其他可形成安全隐患的管道(如水管、排水管、燃气管等)存在或穿越。
机房应留出空调室外机的位置及相应的孔洞。
机房门应向外开启、机房不宜设窗户或安装密闭双层玻璃窗。
机房内不设置上下水、喷淋、中央空调和水暖设施。
机房的上层不应设卫生间,且不宜与厨房、卫生间等易潮湿的地方毗邻。
有线广播电视机房和光电转换间配置面积及工艺要求应符合《民用建筑
通信及有线广播电视基础设施设计规范》DB11/T 804 的有关规定。
2 电源应满足以下要求:
1)各种机房、设备间和光电转换间应引入至少一路交流电源,并安装壁挂式交流配电箱,供电容量应满足供电需求,使用方单独设置计量表。
2)固定通信机房为三相四线,电压标称值为380V,允许变动范围为380±10%V,引入容量一般按40~60kW考虑,具体容量根据实际需求确定。
3)有线广播电视机房为三相四线,电压标称值为380V,允许变动范围为380±10%V,容量应不小于20kW,交流配电箱/屏进线开关容量不小于50A。
4)固定通信设备间电源为单相二线,电压标称值为220V,允许变动范围为220V±10% ,引入容量一般按5~10kW考虑,具体容量根据实际需求确定。
5)光电转换间电源为单相二线。光电转换间采用引自专用断路器的220V供电,电压允许变动范围为220 V±10%,引入容量按5k考虑。
6)蜂窝基站机房和室外一体化基站机房电源为三相四线,电压标称值为380V,交流引入容量应不低于35kW,交流配电箱/屏进线开关容量不小于100A。
7)室内覆盖系统设备间引入一路三相380V电源,并安装壁挂式配电箱容量应不小于15kw。
8)有线广播电视机房、光电转换间、通信设备间应设置普通照明,并提供不少于三个单相三孔电源插座(220V/10A)。
11.6 公共安全系统
11.6.1 公共安全系统应包括住宅火灾自动报警系统和安全技术防范系统。
11.6.2 住宅建筑火灾自动报警系统的设置应符合下列规定:
1 建筑高度大于100m 的住宅建筑,应设置火灾自动报警系统。
2 建筑高度大于54m、但不大于100m的高层住宅建筑,公共空间应设置火灾自动报警系统,其套内房间应设置火灾探测器。
3 建筑高度大于27m,但不大于54m的住宅建筑,公共部位宜设置火灾自动报警系统,应设置具有语言功能的火灾声警报装置或应急广播;当设置需联动控制的消防设施时,公共部位应设置火灾自动报警系统。套内房间应设置火灾探测器,至少应选择独立式火灾探测报警器。
4 建筑高度不大于27m的住宅建筑,公共部位宜设置火灾自动报警系统,当设置需联动控制的消防设施时,公共部位应设置火灾自动报警系统。套内房间应设置火灾探测器,至少应选择独立式火灾探测报警器。
5 住宅建筑使用可燃气体的厨房应设置可燃气体探测报警系统,并应符合《火灾自动报警系统设计规范》GB50116的规定。
6 住宅建筑应设置电气火灾监控系统,并应符合《火灾自动报警系统设计规范》GB50116的规定。
11.6.3 住宅建筑内的消防应急照明及灯光疏散指示标志的备用电源的连续供电时间应符合下列规定:
1 建筑高度为100m及以上的住宅建筑,不应少于1.5h。
2 其他住宅建筑,不应少于1.0h。
11.6.4 住宅建筑内消防设施的供电干线电缆应符合下列规定:
1 建筑高度为100m及以上的住宅建筑,应采用矿物绝缘电缆。
2 建筑高度大于54m但不大于100m的住宅建筑,应采用阻燃耐火线缆,宜采用矿物绝缘电缆。
3 建筑高度大于27m但不大于54m的住宅建筑,应采用阻燃耐火线缆。
4 与其他配电线路敷设在同一电缆井、沟内的消防配电线路应满足本规范12.0.9的规定,并应采用矿物绝缘电缆。
11.6.5 住宅建筑内公共疏散通道的应急照明线缆应符合下列规定:
1 建筑高度为54m及以上的住宅建筑,应采用低烟无卤线缆。
2 建筑高度大于27m但不大于54m的住宅建筑,宜采用低烟无卤线缆。
11.6.6 住宅安全技术防范系统应包括周界安全防范系统、公共区域安全防范系统、家庭安全防范系统及安防中心。小区安全防范系统应当具备接入公
共安防系统的条件。
11.6.7 住宅建筑应设置访客对讲系统,进入住宅单元的各通道门均应设置电子门锁。访客对讲系统应与火灾自动报警系统联动,当发生火警时,自动
解除电子门锁控制。
11.6.8 住宅套内应设置紧急呼叫装置,紧急呼叫装置的报警信号应传输至安防中心。
11.6.9 首、二层及顶层等易于被入侵的住户套内、户门、阳台及外窗等处应设置安全防范设施。如采用入侵报警探测装置,报警信号应能发送给业主
或小区物业管理中心。
11.7 智能家居系统
11.7.1 智能家居系统结构应满足以下要求:
智能家居系统分为四个层次:智能家居家庭网络层、通信网络层、业务平台层和智能家居应用层,并包括管理智能家居终端、智能家居业务平台和智能家居应用的网管系统。
1 家庭网络层结构主要设备包括智能家居网关、智能家居控制设备、终端代理、以及其他智能家居终端。
2 通信网络层结构包括公共通信网络和通信服务能力。其中,公共通信网络主要提供 IP 连接能力;通信服务能力将公共通信网络的语音、定位、呈现、短信、彩信和媒体服务能力,通过开放接口接入至智能家居业务平台。
3 业务平台层结构为智能家居应用提供支撑和管理,主要包括业务网关、运营管理平台和能力开放网关。
4 智能家居应用层结构的智能家居应用利用能力开放网关提供的开放接口实现智能家居服务。
5 网管系统实现对智能家居终端、智能家居业务平台和智能家居应用的管理;公共通信网络、通信服务能力的网管可由其它网管系统提供。
11.7.2 智能家居系统的安全应满足以下要求:
1 网络安全要求包括智能家居家庭网络的安全以及连接公共通信网络的安全、智能家居内部组网禁止非法的终端接入和外部访问。
2 系统安全要求包括智能家居控制设备设备系统的安全以及业务平台系统的安全。
3 信息安全要求包括智能家居控制设备存储和管理的信息以及业务平台存储和管理的信息。
11.7.3 智能家居的信息基础设施包括光缆接入系统与布线接入系统,系统的设计应符合《民用建筑通信及有线广播电视基础设施设计规范》DB11/T804的规定。
11.8 电气节能设计
11.8.1 住宅每户照明功率密度值应满足《建筑照明设计标准》(GB50034)中的规定。
11.8.2 居住小区配变电所采用的变压器能效等级应不低于《三相配电变压器能效限定值及能效等级》GB20052 规定的2级能效标准,住宅装修设计选择家用电器时宜采用达到中国能效标识二级以上等级的节能产品。
11.8.3 高级住宅宜采用智能照明控制系统。
11.8.4 楼梯间、走道等室内公共场所的照明,应采用高效节能照明装置(光源、灯具及附件)和节能控制措施。
11.8.5 住宅楼的电梯系统应具有节能运行控制模式。
11.8.6 住宅采用新能源系统时应在户箱内设置用于能源管理的电能表,宜采用模数化导轨安装的直接接入静止式交流有功电能表。
11.8.7 住宅配套停车位应按规划要求配建充电桩。
1 交流充电桩的供电电压采用 AC220V,额定电流不应大于 32A,应具有剩余电流保护功能;
2 交流充电桩应具有RS-485通信接口,可接入上级能源监控管理系统,支持《基于Modbus协议的工业自动化网络规范》GB/T19582开放式协议;
3 公用充电桩群的配电应采用AC380V,N线截面应满足可能出现的三相不平衡电流和谐波电流;
4 公用充电桩群配电干线当接入住宅小区配套公建的10kV用户配电室时,应首先兼用原有变压器为其供电,该干线回路在小区公建的电能分项计量系统中采用的编码规则应符合表 11.8.7,公用充电桩群编码采用 E7D。

11.8.8 住宅内宜配置家用电器能效管理系统。
11.8.9 住宅内宜为智能家电物联网的应用设置适宜的无线网络信号收发装置,设置位置应便于维护、散热,距离本户和相邻户床位水平与垂直距离不应小于1.5米。
12 管线综合设计
12.0.1 给排水及供暖管线不应穿越电气用房区域,如必须穿越时,应有可靠且便于检修的土建分隔做法。
12.0.2 地下室管线布置应符合以下要求:
1 留出管线检修空间。
2 管线宜集中布置在同一楼层的公共区域,检修阀门应设置在公共区域。
3 当管线的管底距地高度不能满足建筑净高要求时,应分楼层分系统布置管线。
12.0.3 水暖管井应综合考虑设置的位置与面积。给水、中水公共管井宜与供暖公共管井分开设置,公共管井内宜设置排水设施。
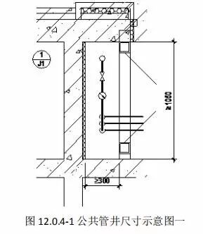
12.0.4 公共管井的管线布置应预留足够的安装及检修空间,管道井的尺寸,应根据管道数量、管径大小、排列方式、维修条件,结合建筑平面和结构形式等合理确定。需进人维修管道的管井,其维修人员的工作通道净宽度不宜小于0.6m。管井面宽不应小于1050mm。当立管与计量表接管在平面上为同一排时,进深不应小于300mm;当立管与计量表接管在平面上为前后排列时,进深不应小于500mm。

12.0.5 公共管井内的计量表安装高度不宜高于1.5m,并宜靠外布置。水暖系统计量表在同一管井内布置时,应将给水表、中水表、热水表放置于易于观察的位置。
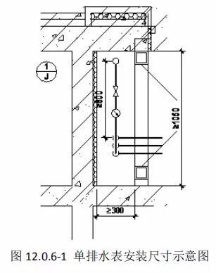
12.0.6 户用水表接管前后的直线管段总尺寸不宜小于600mm,单排布置水表时其竖向间距不应小于250mm,双排布置水表时水平及竖向间距均不宜小于250mm。

12.0.7 电气管线敷设时,应考虑与设备管线的间距要求,并应满足电磁兼容性的要求。
12.0.8 线缆垂直敷设时,强电和弱电系统宜分别设置电气竖井。当受条件限制需合用时,强电和弱电线缆应分别布置在竖井两侧或采取隔离措施。
12.0.9 消防与非消防配电线路宜分开敷设在不同的电气竖井中,确有困难需要敷设在同一电气竖井中时,应分别布置在竖井的两侧。
12.0.10 电气竖井应在每层楼板处采用不低于楼板耐火极限的不燃烧材料或防火封堵材料封堵。
12.0.11 套内电气设备的设计应考虑与家具、厨房、卫生间的布置相协调,并应为住户留有改造的余地。
本规定用词说明
1 执行本规定条文时,对于要求严格程度的用词说明如下,以便执行中区别对待。
1)表示很严格,非这样做不可的用词:
正面词采用“必须”;
反面词采用“严禁”。
2)表示严格,在正常情况下均应这样做的用词:
正面词采用“应”;
反面词采用“不应”或“不得”。
3)表示允许稍有选择,在条件许可时首先应这样做的用词:
正面词采用“宜”;
反面词采用“不宜”;
表示有选择,在一定条件下可以这样做的,采用“可”。
2 条文中指明应按其他有关规范、标准执行的写法为“应按..执行”或“符合..要求或规定”,非必须按所指定的标准和规范执行的写法为“可参照..执行”。

热门经典
建筑,到底是怎样的一个专业?你爸是个建筑师Heatherwick新作落成,纽约最火网红建筑是怎样炼成的?最美不过城市肌理
往期导读




-有偿征稿-
“建筑相关短篇故事 / 长篇连载 / 建筑师日常吐槽 / 软件攻略评价 / 世界建筑介绍 / 建筑历史/ 建筑八卦",原创首发。项目、文章投稿邮箱:396208158@qq.com。